






Продажа коммерческого помещения – Ecocity Residence
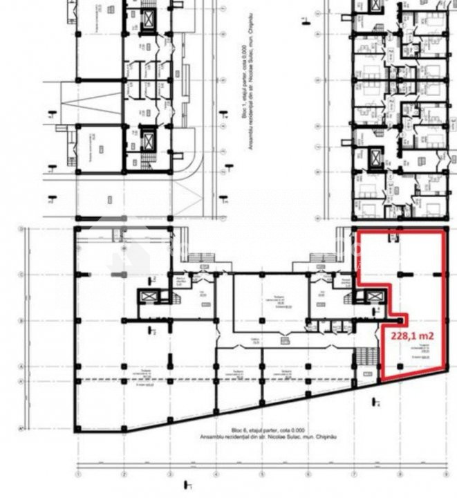
Продается коммерческое помещение на первом этаже жилого дома Ecocity Residence, введенного в эксплуатацию, с 3 отдельными входами, идеально подходящее для различных коммерческих или сервисных деятельностей.
Преимущества помещения:
Парковка для клиентов прямо перед помещением, обеспечивающая быстрый доступ;
Отличное расположение на ул. Милеску Спэтэру, с высокой видимостью для пешеходов и автотранспорта;
Постоянный поток клиентов благодаря близости к якорным компаниям, таким как Fish-Market и будущий Supermarket №1;
Гибкость в планировке с возможностью разделения на 3 отдельных помещения, подходящих для нескольких видов деятельности одновременно.
Это помещение представляет собой отличную инвестиционную возможность как для новых бизнесов, так и для расширения существующих.
Prețul:
* Datele financiare sunt aproximative și pot varia în funcție de instituția financiară.