

























Особенная недвижимость, расположенная в историческом центре города Кишинёва, в районе с высокой архитектурной и инвестиционной ценностью. Дом был построен в начале XX века в эклектичном стиле с модернистскими элементами и выровнен по линии улицы в соответствии с исторической типологией района.
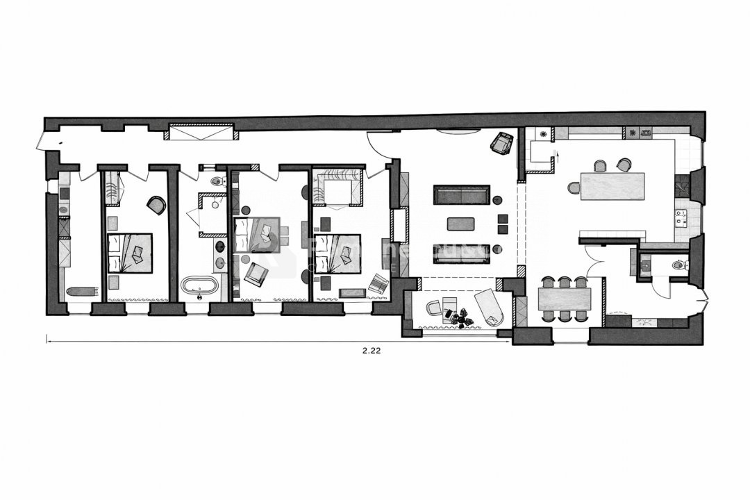
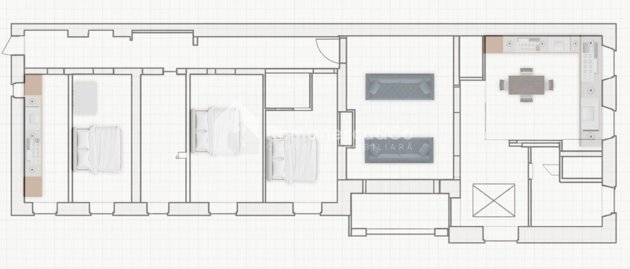
Жилая площадь составляет 251 кв.м, дом развёрнут на один этаж с обустроенным мансардным помещением. Планировка функциональная и сбалансированная, включает три спальни, просторную гостиную, две ванные комнаты и вспомогательные помещения. В задней части расположена собственная территория, а в собственности имеется молдавский подвал.
Дом подвергся полной капитальной реставрации, включая интерьер и крышу. Все работы выполнены согласно дизайн-проекту с использованием премиальных материалов. Отделка включает итальянский дубовый паркет, испанскую терракоту, краску Benjamin Moore, систему тёплого пола во всех помещениях и шведскую кровлю.
Благодаря расположению, архитектуре и качеству исполнения, недвижимость идеально подходит как для эксклюзивного проживания, так и для инвестиций — для офисов компании, представительств, рабочих пространств или премиальной коммерческой деятельности.
Редкая возможность в историческом центре Кишинёва.
Для получения дополнительной информации и организации просмотра, свяжитесь с нами.
Prețul:
* Datele financiare sunt aproximative și pot varia în funcție de instituția financiară.