








Квартира с 1 спальней и гостиной (возможна перепланировка в 2 комнаты), сектор Буюканы, ул. Бисеричий.
Жилой комплекс „Hora Village”.
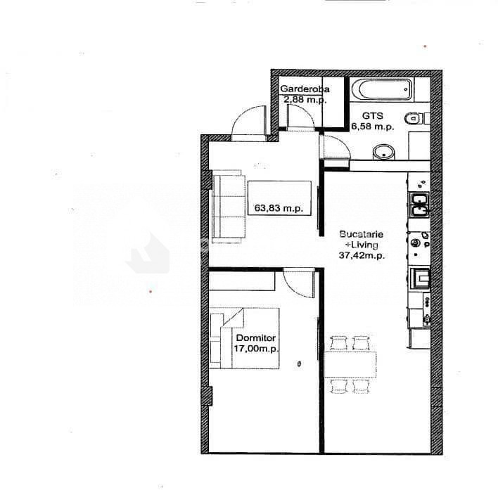
Общая площадь: 63,83 м².
Планировка: спальня, кухня совмещённая с гостиной, санузел, гардеробная и прихожая.
Характеристики:
автономное отопление;
панорамные окна;
дом из красного кирпича;
закрытый двор с ограниченным доступом и видеонаблюдением;
расположение рядом с парком «Valea Morilor».
Двор комплекса будет благоустроен: коммерческие помещения, частный детский сад, многочисленные детские игровые площадки, спортивные зоны для взрослых. На первом этапе будет обустроен собственный парк с фонтаном и пешеходной аллеей.
В непосредственной близости находятся: банки, салоны красоты, супермаркеты, учебные заведения и др.
Удобный доступ к общественному транспорту в любом направлении города.
Prețul:
* Datele financiare sunt aproximative și pot varia în funcție de instituția financiară.