








Apartament cu 1 cameră și living (este posibil de replanificat în 2 camere), sec. Buiucani, pe str-la. Bisericii.
Complexul rezidențial "Hora Village".
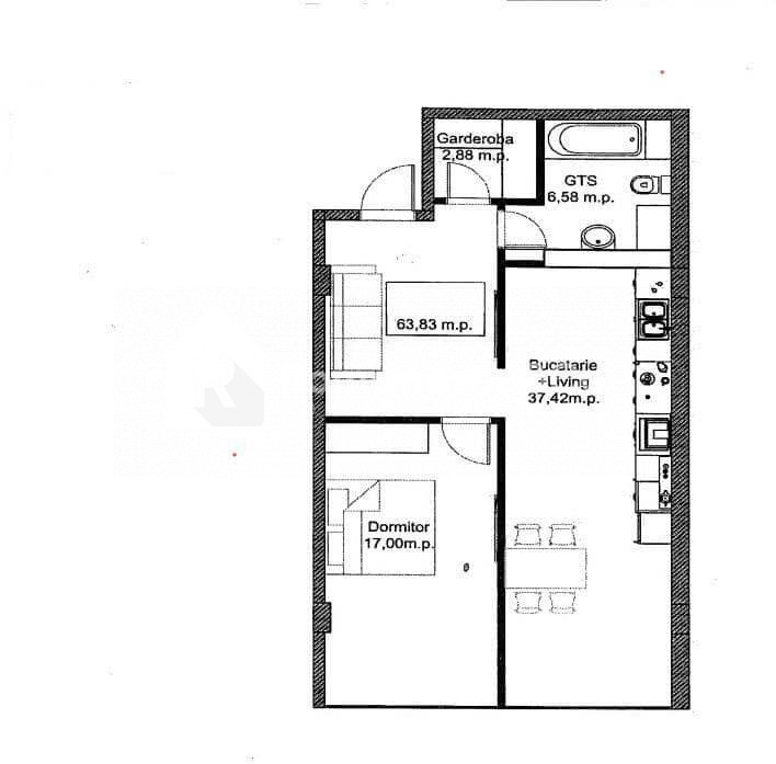
Suprafața totală: 63,83 m.p.
Compartimentare: dormitor, bucătăria comasată cu livingul, bloc sanitar, garderobă și antreu.
Caracteristici:
- încălzire autonomă;
- geamuri panoramice;
- bloc din caramidă roșie;
- curte cu acces restrâns și supraveghere video;
- amplasarea lîngă parcul Valea Morilor.
Curtea complexului va fi amenajată cu diverse spații comerciale, gradiniță privată, multiple terenuri de joacă pentru copii, terenuri de sport pentru maturi, iar în I etapă va fi amenajat propriul parc cu havuz și alee pietonală.
În imediată apropiere găsiți: bănci, saloane de frumusețe, supermarketuri, instituții de învățămînt etc.
Acces facil la transportul public în orice direcție a orașului.
Prețul:
* Datele financiare sunt aproximative și pot varia în funcție de instituția financiară.