Imagine 77

3-комнатная квартира | Новый дом Varincom | Рышкановка, ул. Николае Димо

ID: 101008075 Chisinau, Riscani 7
158.300€
Описание
3-комнатная квартира | Новый дом Varincom | Рышкановка, ул. Николае Димо

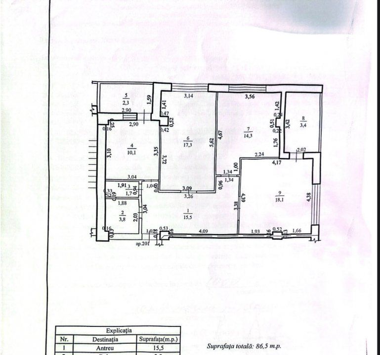
Расположена на 2 этаже из 11, общая площадь — 86,50 м².
Квартира предлагается в белом варианте, готова к обустройству по вашему стилю. Планировка практичная, а дом новый, построен и отделан компанией Varincom, все коммуникации уже подключены.

Основные характеристики:
• Общая площадь: 86,5 м²
• Этаж: 2 / 11
• Открытый балкон
• Новый дом Varincom
• Белый вариант
• Все коммуникации подключены

Район зеленый и тихий, с удобным доступом к общественному транспорту, магазинам, школам и другим объектам инфраструктуры. Отличный вариант как для собственного проживания, так и для надежного инвестирования, в месте с постоянным спросом.
Характеристики
  • ID:101008075
  • Кол-во комнат:3
  • Общая площадь:86.50 mp
  • Этаж:Etaj 2
  • Этажность:P+11
Електричество
Вода
Центральная канализация
Газ
Автономное отопление
Локация
Cacerovschi Vlad
Senior Partner
Позвоните
Подобные объекты
Imagine 16065
0% comision
Квартира с видом на Valea Morilor в комплексе Exfactor Vasile Lupu
Chisinau, Buiucani 139.900€
2 Комнат Этаж 10/13
Imagine 15914
0% comision
Телецентр, ул. Спрынченоая — 2-комнатная квартира + гостиная, новострой.
Chisinau, Telecentru 146.900€
2 Комнат Этаж 6/13
Imagine 15797
0% comision
Квартира с 1 спальней и гостиной, рядом с парком Valea Morilor.
Chisinau, Buiucani 147.000€
1 Комнат Этаж 11/14
Imagine 15773
0% comision
Квартира с 2 комнатами и гостиной, двусторонняя, середина, ул. Ион Буздуган.
Chisinau, Buiucani 172.900€
2 Комнат Этаж 4/9
Imagine 15719
0% comision
Современная квартира с 2 спальнями и гостиной в Braus Royal Residence.
Chisinau, Ciocana 143.900€
2 Комнат Этаж 4/20
Imagine 15698
0% comision
3-комнатная квартира, автономное отопление, серия 102, Старая Почта.
Chisinau, Posta Veche 134.900€
3 Комнат Этаж 3/5