Imagine 77

Квартира в рассрочку, 2 спальни + гостиная, Esterra Park, клубный дом.

ID: P18125 Durlesti, Centru 11
111.000€
Описание
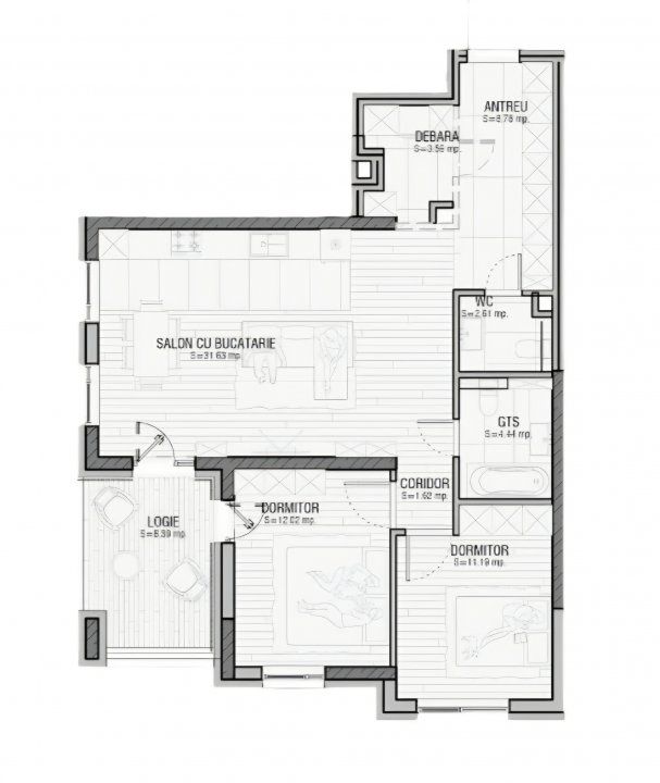
Предлагаем к продаже просторную 2-комнатную квартиру с объединённой кухней-гостиной и вместительной лоджией, расположенную в жилом комплексе Esterra Park — новом клубном доме, который является одним из лучших предложений на рынке недвижимости района Дурлешты.

Проект выделяется высоким качеством используемых материалов и отделки, а также широким спектром предоставляемых удобств:
Парковочные места;
Детская игровая площадка;
Футбольный клуб;
Детский сад;
Тренажёрный зал;
Другие современные удобства.

Функциональная планировка:
Прихожая;
2 спальни;
Объединённая кухня-гостиная – 32 кв.м;
2 санузла;
Лоджия.

Условия оплаты:
Первый взнос – 68.391 евро
11 ежемесячных платежей по 3.619 евро

Сдача в эксплуатацию: июнь 2026 года.
Характеристики
  • ID:P18125
  • Кол-во комнат:2
  • Общая площадь:79.56 mp
  • Этаж:Etaj 4
  • Кол-во кухон:1
  • Кол-во ванн:1
  • год строительства:2026
  • Структура:Caramida
  • Этажность:P+6
Електричество
Вода
Центральная канализация
Автономное отопление
Izolatie Exterior
Ferestre Aluminiu
Локация
Ivanov Serghei
Senior Partner
Позвоните
Подобные объекты
Imagine 16041
Продается 3х комнатная квартира с ливингом, Estate Bucovina.
Chisinau, Ciocana 94.500€
3 Комнат Этаж 2/11
Imagine 16011
0% comision
2-комнатная квартира, 57,3 м², Sky House, ул. Диминеций.
Chisinau, Botanica 100.562€
2 Комнат Этаж 8/16
Imagine 15982
0% comision
Пентхаус с 2 спальнями и террасой в Hora Village, рядом с Valea Morilor.
Chisinau, Buiucani 117.900€
2 Комнат Этаж 5/5
Imagine 15641
0% comision
Квартира с 1 спальней и гостиной в новом доме с евроремонтом, Дурлешты.
Durlesti, Centru 99.900€
1 Комнат Этаж 1/7
Imagine 15638
0% comision
Продажа квартиры с 2 комнатами и гостиной в жилом комплексе Lagmar Cluj.
Chisinau, Posta Veche 108.025€
2 Комнат Этаж 3/12
Imagine 15605
Квартира с 1 спальней и гостиной, City Gardens, бул. Renașterii Naționale.
Chisinau, Centru 99.900€
2 Комнат Этаж 8/14