Imagine 77

Продажа квартиры – DASC Family Residence

ID: P20668 Durlesti, Centru 11
80.000€
Описание
Продаётся квартира в жилом комплексе DASC Family Residence, расположенном по адресу: ул. Михай Витязул, 4.

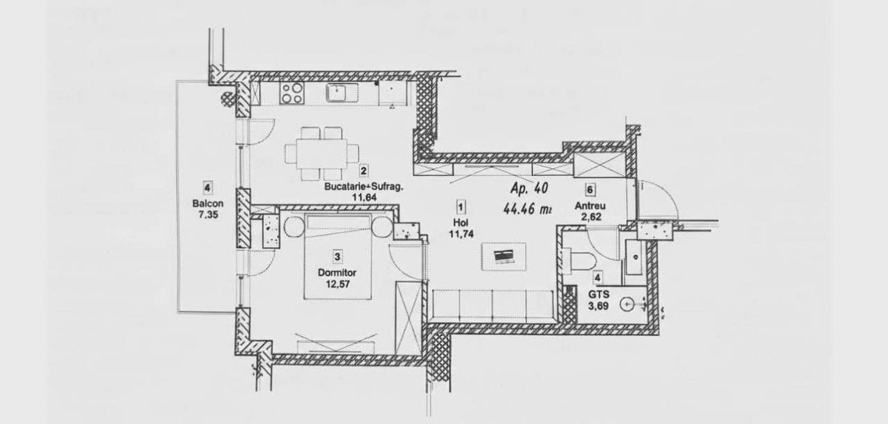
Общая площадь: 44,46 м²
Этаж: 4 из 7
Дом в стадии строительства
Квартира в белом варианте

Квартира находится в современном жилом комплексе, спроектированном для комфорта и спокойной жизни. Комплекс состоит всего из 85 квартир, что обеспечивает больше уединения и приятную жилую атмосферу.

Практичная и светлая планировка
Возможность обустроить квартиру по собственному вкусу
Новый дом, построенный по современным стандартам
Подземный паркинг на 2 уровня для жильцов
Благоустроенный двор и охраняемый доступ

Удобное расположение с быстрым доступом к общественному транспорту, магазинам, аптекам и другим городским удобствам.

Идеальный вариант как для проживания, так и для инвестиции.

Для получения дополнительной информации и записи на просмотр свяжитесь с нами.
Характеристики
  • ID:P20668
  • Кол-во комнат:1
  • Общая площадь:44.46 mp
  • Этаж:Etaj 4
  • Кол-во кухон:1
  • Кол-во ванн:1
  • Кол-во балконов:1
  • Этажность:P+7
Електричество
Вода
Центральная канализация
Газ
Локация
Boiciuc Liudmila
Senior Partner
Позвоните
Подобные объекты
Imagine 16023
0% comision
1-комнатная квартира + гостиная, сдан в эксплуатацию / Hora Village
Chisinau, Buiucani 89.920€
1 Комнат Этаж 4/5
Imagine 15993
0% comision
1-комнатная квартира в новом доме, Дурлешты, ул. Штефан Водэ.
Durlesti, Centru 79.500€
1 Комнат Этаж 7/9
Imagine 15964
0% comision Exclusivitate ) Prima casa
Продажа 1-комнатной квартиры напротив парка «La Izvor».
Chisinau, Sculeni 80.000€
1 Комнат Этаж 5/5
Imagine 15895
0% comision Rep. exclusiva
Двухуровневая квартира, серия 143, Добруджа, ул. Ион Крянгэ.
Dobrogea, Centru 70.000€
4 Комнат Этаж 9/10
Imagine 15862
0% comision
Продажа квартиры с 2 комнатами + гостиной, Ботаника, ул. Христо Ботев.
Chisinau, Botanica 85.000€
2 Комнат Этаж 2/5
Imagine 15824
1-комнатная квартира + гостиная, новострой, SkyHouse, Ботаника, ул. Бачой Ной.
Chisinau, Botanica 82.000€
1 Комнат Этаж 8/10