Imagine 77

Продажа 1 -комнатной квартиры в MRK Residence, Дурлешты

ID: P20200 Durlesti, Centru 9
44.264€
Описание
Продажа 1-комнатной квартиры в MRK Residence, Дурлешты

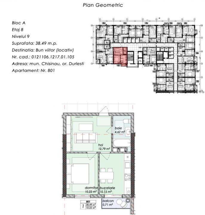
Продается 1-комнатная квартира +living zone площадью 38,49 м², расположенная на 8 этаже современного жилого комплекса MRK Residence, в центре Дурлешт, по улице Николая Димо

Компактная и функциональная площадь делает эту квартиру идеальным вариантом для инвестиций — отличное решение, чтобы купить сейчас и выгодно перепродать в будущем, сдавать в аренду, либо использовать для собственного проживания.

Квартира прекрасно подойдет для:
• одного человека
• молодой пары
• парня или девушки
• тех, кто ищет современное и удобное жилье с минимальными затратами

Планировка:
• зона ливинга
• отдельная спальня
• кухня
• балкон
• санузел

Квартира сдается в белом варианте, с установленным автономным котлом отопления, что обеспечивает комфорт и экономию.

О доме и качестве строительства:
• кирпич Brickstone
• утепление фасада минеральной ватой и полистиролом
• энергоэффективные окна 5–6 камер
• 3 уровня подземного паркинга с гарантированными парковочными местами

Локация и преимущества:
Комплекс расположен в центре Дурлешт — районе с развитой инфраструктурой:
• рядом общественный транспорт
• магазины, супермаркеты, аптеки, поликлиники
• школы и детские сады
• 10 минут до центра Кишинева

MRK Residence — это современное жилье, выгодная инвестиция и удобный формат жизни в динамично развивающемся районе.
Характеристики
  • ID:P20200
  • Кол-во комнат:1
  • Общая площадь:38.49 mp
  • Этаж:Etaj 8
  • Кол-во кухон:1
  • Кол-во ванн:1
  • Кол-во балконов:1
  • Этажность:P+11
Електричество
Вода
Центральная канализация
Газ
Кабельное телевидение
Интернет
Оптический кабель
Автономное отопление
Izolatie Exterior
Ferestre PVC
Usa intrare Metal
Домофон
Видеодомофон
Лифт
Двор
Общий двор
Локация
Cebanu Nicolae
Stagiar
Позвоните
Подобные объекты
Imagine 15854
0% comision
Продается комната с собственными удобствами, Ботаника.
Chisinau, Botanica 47.900€
1 Комнат Этаж 2/4
Imagine 15037
Чеканы, ул. Михаил Садовяну, 2-комнатная квартира с евроремонтом.
Chisinau, Ciocana 47.900€
2 Комнат Этаж 3/9
Imagine 14990
0% comision
Ботаника, Мунчештское шоссе, комната в общежитии с евроремонтом.
Chisinau, Botanica 41.900€
1 Комнат Этаж 5/5
Imagine 14972
Продается комната с удобствами, Телецентр, Академией.
Chisinau, Telecentru 39.900€
1 Комнат Этаж 3/5
Imagine 14854
Однокомнатная квартира в новом доме – Старая Почта, ул. Язулуй
Chisinau, Posta Veche 43.900€
1 Комнат Этаж 1/10
Imagine 14243
0% comision
Продается комната с удобствами, Ботаника, Индепенденцей.
Chisinau, Botanica 48.500€
1 Комнат Этаж 2/5