Imagine 77

1-комнатная квартира с living-зоной в Colina Verdi Residence, Durlești

ID: P20198 Durlesti, Centru 76
57.238€
Описание
1-комнатная квартира с living-зоной в Colina Verdi Residence, Durlești
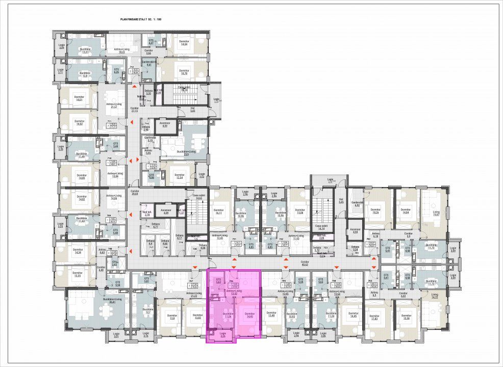
Площадь: 45,79 м²
Этаж: 7 из 14

Предлагается современная квартира в жилом комплексе Colina Verdi Residence — одном из самых перспективных и быстро развивающихся районов Дурлешт, в непосредственной близости к Кишинёву.

Функциональная планировка с просторной living-зоной позволяет создать комфортное пространство для жизни или выгодной аренды. 7 этаж обеспечивает панорамные виды, тишину и оптимальный уровень естественного освещения.

🏗 О доме и строительстве

Дом высотой 14 этажей, построен из газоблока, что гарантирует отличную тепло- и звукоизоляцию. Фасад частично утеплён пенополистиролом, что повышает энергоэффективность и снижает коммунальные расходы.

🚗 Комфорт и инфраструктура комплекса
• 2 уровня подземного паркинга
• Электрозарядные станции для автомобилей
• Современные лифты и качественные зоны общего пользования
• Благоустроенная территория и безопасная среда
• Красивый парк на углу дома — идеальное место для отдыха и прогулок

📍 Локация и преимущества района Durlești

Комплекс расположен в удобной и развитой части Дурлешт, где сочетаются зелёные зоны, свежий воздух и близость к центру города.

В пешей доступности:
• ресторан Andy’s Pizza (Энди Спитца)
• аптеки
• банкоматы
• супермаркеты и магазины
• остановки общественного транспорта

🚌 Общественный транспорт

Район обслуживается несколькими маршрутами, обеспечивающими удобное сообщение с Кишинёвом и другими районами:
• Троллейбус №35 — прямое сообщение с центром Кишинёва
• Автобус №11 — маршрут Ismail – Durlești
• Автобус №11A — Ion Creangă – Caucaz, Durlești

🌇 Преимущества квартиры
• Современный формат с living-пространством
• Оптимальный 7 этаж
• Панорамные виды
• Новый дом в престижном комплексе
• Развитая инфраструктура вокруг
• Отличный вариант для проживания и инвестиций

Colina Verdi Residence — это баланс комфорта, природы, города и перспектив роста стоимости недвижимости.
Характеристики
  • ID:P20198
  • Кол-во комнат:1
  • Общая площадь:45.79 mp
  • Этаж:Etaj 7
  • Кол-во кухон:1
  • Кол-во ванн:1
  • Кол-во балконов:1
  • Этажность:P+11
Електричество
Вода
Центральная канализация
Газ
Кабельное телевидение
Интернет
Оптический кабель
Автономное отопление
Izolatie Exterior
Ferestre PVC
Usa intrare Metal
Газовый счетчик
Домофон
Видеодомофон
Лифт
Места для отдыха
Двор
Локация
Cebanu Nicolae
Stagiar
Позвоните
Подобные объекты
Imagine 22166
0% comision Exclusivitate
Apartament cu 1 cameră în rate, Telecentru, complexul Solaris.
Chisinau, Telecentru 57.500€
1 Комнат Этаж 7/9
Imagine 21745
Ботаника, ул. Индепенденцей — продаётся 1-комнатная квартира.
Chisinau, Botanica 62.900€
1 Комнат Этаж 5/5
Imagine 21632
0% comision
Квартира с 1 комнатой и гостиной в жилом комплексе High Garden
Chisinau, Buiucani 60.125€
1 Комнат Этаж 6/9
Imagine 21628
0% comision
Квартира с 1 спальней и гостиной — Дурлешты
Durlesti, Centru 61.625€
1 Комнат Этаж 7/9
Imagine 21518
0% comision Exclusivitate
1-комнатная квартира, сектор Буюканы, ул. Unirii Principatelor, рядом с Flacăra.
Chisinau, Buiucani 59.900€
1 Комнат Этаж 9/16
Imagine 21476
0% comision
1-комнатная квартира, новостройка, белый вариант, Гидигич, Кишинёв!
Ghidighici, Centru 53.500€
1 Комнат Этаж 6/10