Imagine 77

Продается дом в г. Дурлешты, новый район, 190м2, 3 сотки!

ID: P13513 Durlesti, Centru 81
275.000€
Описание
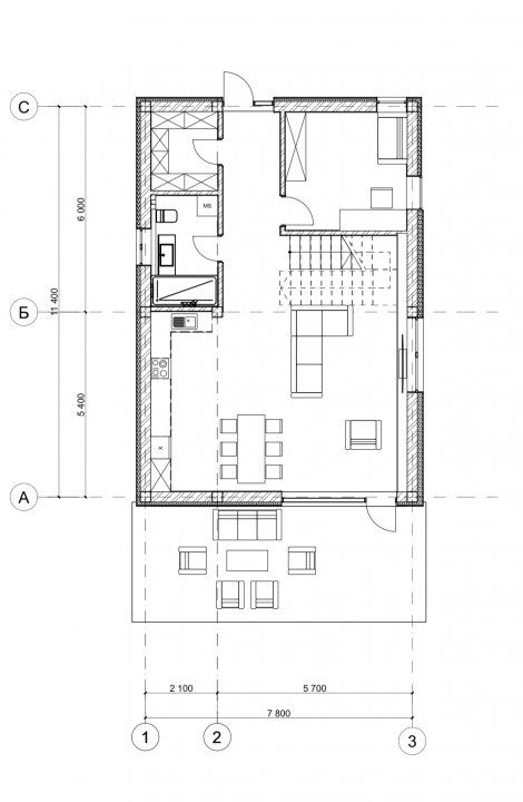
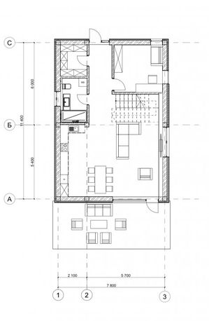
Предлагаемый к продаже дом расположен в новом районе города Дурлешты.
Общая площадь 190 квадратных метров+ 3 сотки земли.

Интерьер дома выполнен в белом варианте, что означает, что у вас есть свобода оформлять каждое помещение в соответствии с вашими собственными предпочтениями.
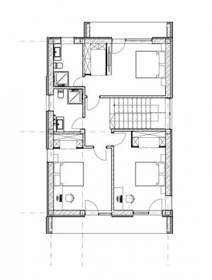
Три спальни и три ванные комнаты обеспечивают достаточно места для семьи и гостей.
Панорамные окна позволяют естественному свету проникать внутрь, создавая светлую и приятную атмосферу.
Есть парковочное место для вашего автомобиля.

Свяжитесь с нами для получения дополнительной информации или назначения просмотра!
Характеристики
  • ID:P13513
  • Кол-во комнат:4
  • Nr. dormitoare:4
  • Общая площадь:190.00 mp
  • сотки:3.00 ari
  • Кол-во кухон:1
  • Кол-во ванн:3
  • Этажность:P+2
Електричество
Вода
Центральная канализация
Газ
Локация
Crăciun Anatolie
Senior Partner
Позвоните
Подобные объекты
Imagine 18412
0% comision
Кишинёв / Дурлешты – TownHouse на 3 уровнях, с евроремонтом и мебелью.
Durlesti, Centru 265.000€
0ari 4 Комнат
Imagine 19063
0% comision
Кишинёв, просторный дом на Старой Почте — полностью меблирован, заезжай и живи!
Chisinau, Posta Veche 295.000€
0ari 7 Комнат
Imagine 18940
0% comision
Дом 170 м² в Дурлештах — комфорт, тишина и удобства
Durlesti 245.000€
0ari 4 Комнат
Imagine 17183
0% comision
Дуплекс в современном стиле с ремонтом премиум-класса, 2 уровня, 138 м², Бачой.
Bacioi, Centru 264.900€
4 Комнат
Imagine 16428
0% comision
Продажа таунхауса с частичным ремонтом в Дурлештах.
Chisinau, Buiucani 290.000€
4 Комнат
Imagine 15748
0% comision
Современный дом, ул. Петрикань!
Chisinau, Buiucani 295.000€
0ari 3 Комнат