










3-комнатная квартира | Новый дом Varincom | Рышкановка, ул. Николае Димо
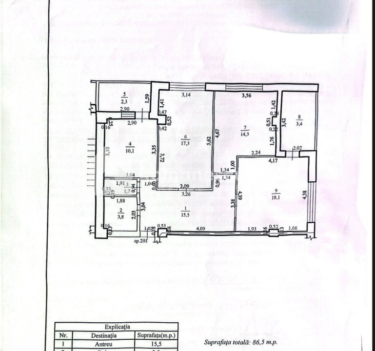
Расположена на 2 этаже из 11, общая площадь — 86,50 м².
Квартира предлагается в белом варианте, готова к обустройству по вашему стилю. Планировка практичная, а дом новый, построен и отделан компанией Varincom, все коммуникации уже подключены.
Основные характеристики:
• Общая площадь: 86,5 м²
• Этаж: 2 / 11
• Открытый балкон
• Новый дом Varincom
• Белый вариант
• Все коммуникации подключены
Район зеленый и тихий, с удобным доступом к общественному транспорту, магазинам, школам и другим объектам инфраструктуры. Отличный вариант как для собственного проживания, так и для надежного инвестирования, в месте с постоянным спросом.
Prețul:
* Datele financiare sunt aproximative și pot varia în funcție de instituția financiară.