


Продается 1-комнатная квартира – Буюканы, ул. Ион Буздуган 11, ExFactor
Предлагается к продаже квартира с 1 комнатой и гостиной, расположенная в комплексе ExFactor, на улице Ион Буздуган 11, район Буюканы.
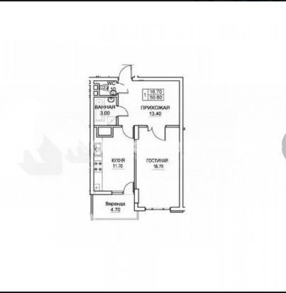
Основные характеристики:
Площадь: 51 м², находится на 6 этаже из 9;
Белый вариант, подготовлена для ремонта по вашему вкусу;
Тёплый пол по всей площади;
Просторная гостиная и светлая комната;
2 санузла для максимального комфорта;
Панорамные окна, обеспечивающие обильное естественное освещение;
Балкон, идеально подходящий для отдыха;
Кирпичное строительство с хорошей тепло- и звукоизоляцией;
Квартира расположена в середине дома, что обеспечивает комфортную температуру и тишину.
Квартира является отличной возможностью для тех, кто ищет современное и светлое пространство, готовое к оформлению по индивидуальным предпочтениям.
Prețul:
* Datele financiare sunt aproximative și pot varia în funcție de instituția financiară.