Imagine 77

Vânzare townhouse în variantă albă, 180 mp, Durlești, str. Dacilor.

ID: P20704 Durlesti, Centru 3
240.000€
Descriere
Townhouse modern în Durlești – str. Dacilor 40, la doar 5 minute de Alba Iulia.

Vă propunem spre vânzare un townhouse spațios și bine compartimentat, situat într-o zonă liniștită și accesibilă din Durlești.

- Suprafață totală: 180 m²
- Construcție: cărămidă Brikston
- Stare: variantă albă
- Dat în exploatare

Imobilul este proiectat pentru confort maxim și funcționalitate:

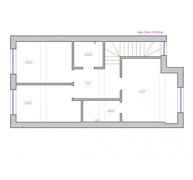
Etajul 1: zonă de intrare, bucătărie cu living open-space, bloc sanitar
Etajul 2: 3 dormitoare luminoase, bloc sanitar, garderobă
Nivel -1: zonă de odihnă cu bucătărie, bloc sanitar, debara și ieșire directă către zona de barbecue

Beneficiază de încălzire în pardoseală pe toată suprafața, oferind confort termic sporit în orice sezon.

În preț sunt incluse 2 locuri de parcare subterane, amplasate chiar lângă townhouse.

Acces facil pe drum asfaltat nou, până la complex.

O alegere ideală pentru cei care își doresc un cămin modern, spațios și bine poziționat, aproape de oraș, dar într-un mediu liniștit.
Caracteristici
  • ID:P20704
  • Nr. camere:4
  • Nr. dormitoare:3
  • S. construita:180.00 mp
  • Nr. bucatarii:1
  • Nr. bai:3
  • Nr. parcari:2
  • Regim inaltime:P+3
Curent
Apa
Canalizare
Gaz
Centrala proprie
Incalzire pardoseala
Localizare
Breslavski Mihail
Senior Partner
Contacteaza-ma
Proprietati similare
Imagine 16277
0% comision
Townhouse de vanzare în variantă albă, Durlești, str. Dacilor.
Durlesti, Centru 250.000€
4 Camere
Imagine 14242
0% comision Exclusivitate
Casă fără reparație spre vânzare în zona Mălina Mică!
Chisinau, Centru 249.900€
0ari 5 Camere
Imagine 13339
0% comision
Townhouse în 3 nivele! Durlești, str-la 3 Vovințeni, 210m2 + 1 ar. Euroreparație
Durlesti, Centru 250.000€
4 Camere
Imagine 13194
Casă nouă cu 4.4 Ari teren | pompă de căldură | Cojușna – 15 min de Chișinău
Cojusna, Centru 239.000€
3 Camere
Imagine 12062
0% comision
Duplex de vanzare – Cricova, str. Drumul Viilor
Cricova, Centru 215.000€
0ari 5 Camere
Imagine 11551
0% comision
Vânzare | Townhouse modern – 172 mp | Telecentru, str. Schinoasa Vale 40
Chisinau, Telecentru 249.000€
3 Camere