Imagine 77

Casă deosebită în 2 nivele, stil scandinav, Dănceni, Ialoveni, 210 mp+8 ari!

ID: P14968 Ialoveni, Centru 71
245.000€
Descriere
Oferim spre vânzare o casă deosebită în stil Barn House și Minimalist, situată în pitoreasca localitate Dănceni, pe str. Mihai Eminescu.
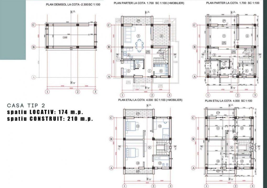
Imobilul are o suprafață generoasă de 210 mp și beneficiază de un teren adițional de 8 ari, ideal pentru activități în aer liber sau alte amenajări.
Compartimentarea casei include: 3 dormitoare, livingul comasat cu bucătăria, 2 blocuri sanitare, antreu, terasă, 4 balcoane de tip deschis, loc de parcare pentru 2 automobile, subsol (depozit), curte de tip închis.

Proprietatea este dată în exploatare, prezentându-se în variantă gri la interior și la cheie pe exterior, oferind astfel posibilitatea de a personaliza interiorul conform preferințelor dumneavoastră.

Caracteristici:
- Sistemul constructiv monolit, cu fundații, depozit și tot integral executat din beton armat marca 250.
- Înălțimea primului nivel este 3 m, iar la al 2 nivel avem o diversificare, astfel, la 2 dormitoare din cele 3, apare înălțime de 4,3 m.
- Pereții de umplutură din cărămida Porotherm, ceea ce oferă protecție împotriva umezelii și durabilitate în timp.
- Termoizolare de 10 cm din polistiren expandat marca maximală M35.
- Acoperișul în pantă este executat din beton monolit, apoi termoizolare de 15 cm din vată minerală Isover, cu 2 membrane de superdifuzie, membrană fonoizolatoare și montată Tabla în click produsă în Suedia.
- Geamuri Veka 82, culoare antracit, cu 7 camere, cu 3 rânduri de sticlă cu grosimi de 6 mm; 4 mm; 6 mm- ceea ce oferă fonoizolare și termoizolare maximală.
- Conectare la gaz, electricitate 380V, canalizare centralizată și adițional este montată fosă septică comună pentru aceste case.

Aceste case impresionează prin vitralii mari, balcoane cu vederi excepționale și terase funcționale.
Fiecare proprietate are un teren adițional de 7-8 ari, cu statut de construcție.

Beneficiați de un proiect de design cadou, ideal pentru personalizarea locuinței!
Caracteristici
  • ID:P14968
  • Nr. camere:3
  • Nr. dormitoare:3
  • S. construita:210.00 mp
  • S. teren:8.00 ari
  • Nr. bai:1
  • Nr. balcoane:2
  • Nr. parcari:1
  • Structura rezistenta:Caramida
  • Regim inaltime:P+3
Curent
Apa
Canalizare
Gaz
Localizare
Prigala Radu
Senior partner
Contacteaza-ma
Proprietati similare
Imagine 20638
0% comision
Casă de vanzare în Ghidighici, mun. Chișinău, 220 mp + 6,15 ari.
Ghidighici, Periferie 220.000€
0ari 5 Camere
Imagine 18412
0% comision
Chișinău / Durlești – TownHouse în 3 nivele, euroreparat și mobilat complet.
Durlesti, Centru 265.000€
0ari 4 Camere
Imagine 17991
0% comision
Duplex modern de vanzare, 155 mp, Durlești, Poiana Silvică.
Durlesti, Periferie 215.000€
0ari 3 Camere
Imagine 18940
0% comision
Casă de 170mp în Durlești – Confort, Liniște și Facilități
Durlesti 245.000€
0ari 4 Camere
Imagine 17183
0% comision
Duplex modern cu reparație premium, 2 nivele, 138 m² + 3,5 ari, Băcioi - Centru.
Bacioi, Centru 264.900€
4 Camere
Imagine 14242
0% comision Exclusivitate
Casă fără reparație spre vânzare în zona Mălina Mică!
Chisinau, Centru 249.900€
0ari 5 Camere