Imagine 77

Penthouse cu terasă în complexul Solomon Grenoble Residence!

ID: P20932 Chisinau, Botanica 7
266.540€
Descriere
Penthouse exclusiv în Solomon Grenoble Residence – confort premium într-o zonă verde!

Vă prezentăm un penthouse spațios, situat în cadrul complexului rezidențial Solomon Grenoble Residence, amplasat într-o zonă liniștită și ecologică din sectorul Botanica.
O alegere ideală pentru cei care apreciază confortul, calitatea și un stil de viață modern.

Caracteristici principale:
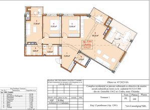
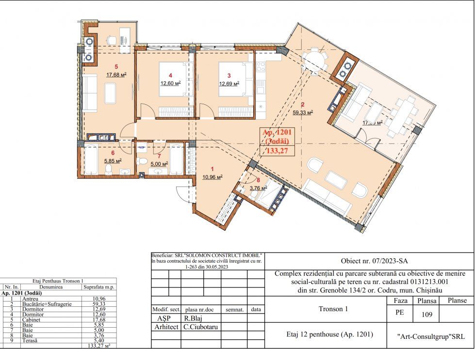
Suprafață totală: 133 m²
Compartimentare inteligentă: 3 dormitoare luminoase
3 blocuri sanitare – confort maxim pentru întreaga familie
Terasă generoasă de 18 m² – perfectă pentru relaxare

Termen de dare în exploatare: 08/2026

Avantaje și beneficii:
Spațiu amplu, bine organizat pentru un trai confortabil
Construcție de înaltă calitate, realizată din materiale durabile
Fațadă modernă termoizolată cu vată minerală și finisaje din ceramo-granit, oferind eficiență energetică și rezistență în timp

Localizare și infrastructură:
Zonă verde, aer curat și liniște
Infrastructură dezvoltată: școală, grădiniță, centru pentru tineret
Spații comerciale și servicii esențiale în imediata apropiere
Acces facil către principalele artere ale orașului

Solomon Grenoble Residence îmbină perfect confortul urban cu natura, oferind un mediu sigur și modern pentru tine și familia ta.
Caracteristici
  • ID:P20932
  • Nr. camere:3
  • S. construita:133.27 mp
  • Etaj:Etaj 12
  • Nr. bucatarii:1
  • Nr. bai:3
  • Nr. balcoane:1
  • An constructie:2026
  • Regim inaltime:P+12
Curent
Apa
Canalizare
Gaz
CATV
Acces internet
Fibra optica
Centrala proprie
Calorifere
Localizare
Golban Vitalie
Senior Partner
Contacteaza-ma
Proprietati similare
Imagine 20163
0% comision
Exfactor V. Lupu – Apartament modern 2 camere + living, finisaje premium!
Chisinau, Buiucani 240.000€
2 Camere Etaj 3/12
Imagine 20288
0% comision
Apartament cu 3 camere în variantă albă, vizavi de parcul Valea Trandafirilor!
Chisinau, Centru 299.000€
3 Camere Etaj 7/10
Imagine 19569
0% comision
Vanzare apartament cu 3 camere, Ciocana, Chișinău, Mircea cel Bătrân.
Chisinau, Ciocana 239.000€
3 Camere Etaj 3/11
Imagine 17789
Vanzare apartament cu 3 camere + living, bloc nou, Ciocana, Nicolae Sulac.
Chisinau, Ciocana 239.000€
3 Camere Etaj 11/14
Imagine 16928
0% comision
Premium Tower | Centru | 2 camere + living | Panoramă superbă spre oraș!
Chisinau, Centru 285.000€
2 Camere Etaj 18/24
Imagine 15834
0% comision
Apartament cu 2 camere și living în bloc de elită, lângă parcul Valea Morilor!
Chisinau, Centru 245.000€
2 Camere Etaj 2/5