Imagine 77

Apartament cu 2 camere, bloc nou, dat în exploatare, Durlești.

ID: P20486 Durlesti, Centru 8
99.100€
Descriere
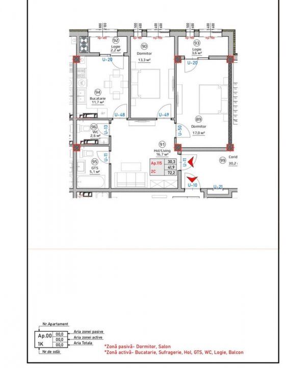
Spre vânzare apartament în variantă albă, amplasat în noul complex locativ Select New Town, Durlești – bloc dat în exploatare!

Vă propunem un apartament spațios cu 2 camere, cu suprafața totală de 73 m², situat la etajul 6 din 9, într-un imobil modern construit conform standardelor actuale de calitate și eficiență energetică.

Compartimentare reușită:
2 camere;
bucătărie;
2 blocuri sanitare;
balcon.

Apartamentul se prezintă în variantă albă, oferind libertatea de a amenaja interiorul după propriul gust.

Caracteristici și facilități ale complexului:
carcas monolit din beton armat;
fațadă termoizolată cu polistiren și vată minerală în jurul geamurilor;
construcție din cărămidă Brikston;
încălzire autonomă;
geamuri termopan;
ascensor silențios cu acces inclusiv la parcarea subterană;
parcare subterană;
interfon și conexiuni telefon/TV/internet prin fibră optică;
contoare individuale la gaz, electricitate și apă;
sistem de supraveghere video.

Imobilul este amplasat într-o zonă în continuă dezvoltare, cu acces rapid către oraș și infrastructură modernă.

Apartamentul este eligibil pentru Programul Prima Casă și Ipotecă.
Caracteristici
  • ID:P20486
  • Nr. camere:2
  • S. construita:73.00 mp
  • Etaj:Etaj 6
  • Nr. bucatarii:1
  • Nr. bai:2
  • Nr. balcoane:1
  • Regim inaltime:P+9
  • Orientare:Nord
Curent
Apa
Canalizare
Gaz
Centrala proprie
Localizare
Talpău Victor
Senior Partner
Contacteaza-ma
Proprietati similare
Imagine 16041
Apartament cu 3 camere + living, Estate Bucovina.
Chisinau, Ciocana 94.500€
3 Camere Etaj 2/11
Imagine 16023
0% comision
Apartament cu 1 cameră + living dat în exploatare / Hora Village
Chisinau, Buiucani 89.920€
1 Camera Etaj 4/5
Imagine 16011
0% comision
Apartament cu 2 camere, 57,3mp, Sky House, Diminetii.
Chisinau, Botanica 100.562€
2 Camere Etaj 8/16
Imagine 15862
0% comision
Vanzare apartament cu 2 camere + living, Botanica, Hristo Botev.
Chisinau, Botanica 85.000€
2 Camere Etaj 2/5
Imagine 15676
Bloc Nou, Durlești, str. Nicolae Dimo, 1 cameră + living, reparație euro.
Durlesti, Centru 89.900€
1 Camera Etaj 7/10
Imagine 15641
0% comision
Apartment cu 1 cameră și living în bloc nou cu reparație euro, Durlești.
Durlesti, Centru 99.900€
1 Camera Etaj 1/7