Imagine 77

Botanica/Aeroport, apartament cu 1 camera, bloc nou, autonomă, prima linie!

ID: P12659 Chisinau, Botanica 1
54.900€
Descriere
Apartament cu potențial în sectorul Botanica, în apropiere de Aeroport, Chișinău!

Aveți oportunitatea de a achiziționa un apartament într-un bloc nou, în apropierea Aeroportului Chișinău.
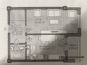
Această proprietate cu 1 camera, la momentul actual în varianta albă, reprezintă o investiție excelentă datorită potențialului său de a fi replanificat într-un dormitor și living, oferind posibilitatea de a crea un spațiu personalizat și confortabil pentru viitorii săi proprietari.

Detalii despre apartament:

-- Situat într-o zonă cu acces ușor către Aeroport și cu conexiuni rapide către alte zone din oraș, acest apartament se bucură de avantajele unei locații bine poziționate, oferind acces la facilități importante precum magazine, restaurante și mijloace de transport.

-- Cu o suprafață de 42 de metri pătrați, acest apartament poate fi reconfigurat dintr-o cameră într-un dormitor și living, oferind libertatea de a adapta spațiul conform preferințelor personale.

-- Situat la etajul 1 al unui bloc nou, această proprietate reprezintă o oportunitate excelentă pentru cei care caută un spațiu locativ ce poate fi modelat după propriile gusturi și necesități.

Beneficii suplimentare:
-- Potențial de amenajare flexibilă.
-- Infrastructură modernă și calitate în construcție.
-- Zonă în creștere cu perspective de dezvoltare.

Pentru a afla mai multe detalii sau pentru a programa o vizită și a vedea această proprietate cu potențial, vă rugăm să ne contactați!
Caracteristici
  • ID:P12659
  • Nr. camere:1
  • S. construita:42.00 mp
  • Etaj:Etaj 1
  • Nr. bucatarii:1
  • Nr. bai:1
  • Nr. balcoane:1
  • Regim inaltime:P+10
Curent
Apa
Canalizare
Gaz
Curent trifazic
CATV
Acces internet
Fibra optica
Centrala proprie
Incalzire pardoseala
Calorifere
Izolatie Exterior
Bloc izolat termic
Ferestre PVC
Usa intrare Metal
Apometre
Contor gaz
Interfon
Lift
Spatii agrement
Curte
Localizare
Contacteaza-ma
Proprietati similare
Apartament cu 1 cameră în bloc nou, Telecentru, str. Ialoveni, Solomon.
0% comision
Apartament cu 1 cameră în bloc nou, Telecentru, str. Ialoveni, Solomon.
Chisinau, Telecentru 54.000€
1 Camera Etaj 7/8
Vânzare garsonieră cu comodități proprii, Botanica, lângă Stadionul Zimbru.
0% comision
Vânzare garsonieră cu comodități proprii, Botanica, lângă Stadionul Zimbru.
Chisinau, Botanica 47.900€
1 Camera Etaj 2/4
Apartament cu 1 cameră în rate, Durlesti, Isra Grup, Select New Town.
0% comision
Apartament cu 1 cameră în rate, Durlesti, Isra Grup, Select New Town.
61.900€
1 Camera Etaj 8/9
Apartament de vanzare cu 1 cameră, Ciocana, Voluntarilor.
0% comision
Apartament de vanzare cu 1 cameră, Ciocana, Voluntarilor.
Chisinau, Ciocana 58.500€
1 Camera Etaj 8/10
Vînzare apartament cu 1 cameră și living, Stăuceni, Centru!
0% comision
Vînzare apartament cu 1 cameră și living, Stăuceni, Centru!
62.500€
1 Camera Etaj 2/12
Ciocana, Mihail Sadoveanu, apartament cu 2 camere, reparație euro, de mijloc.
Ciocana, Mihail Sadoveanu, apartament cu 2 camere, reparație euro, de mijloc.
Chisinau, Ciocana 47.900€
2 Camere Etaj 3/9