





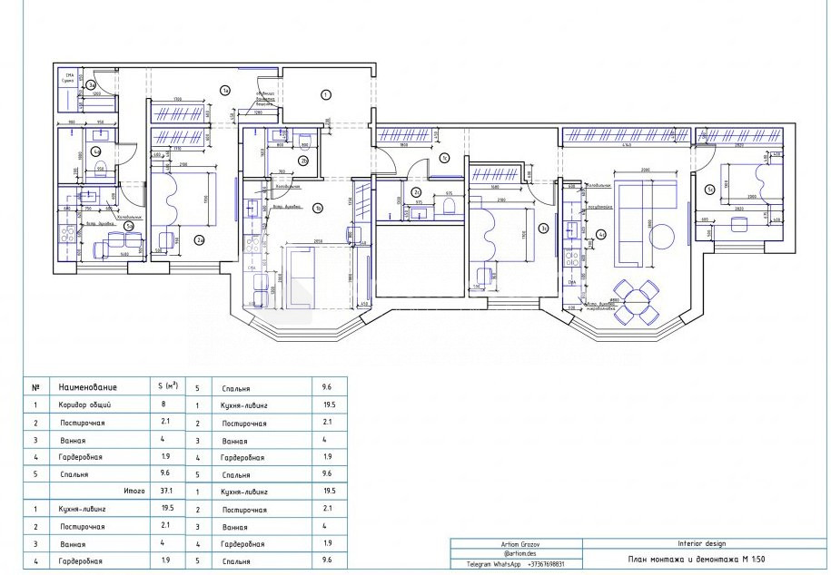
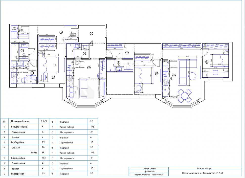
Se propune spre vânzare un spațiu nelocativ cu suprafața de 130 mp, situat pe Bulevardul Ștefan cel Mare, într-o zonă cu trafic intens și vizibilitate excelentă.
Spațiul se vinde ”la gri”, oferind posibilitatea de a-l amenaja conform nevoilor proprii.
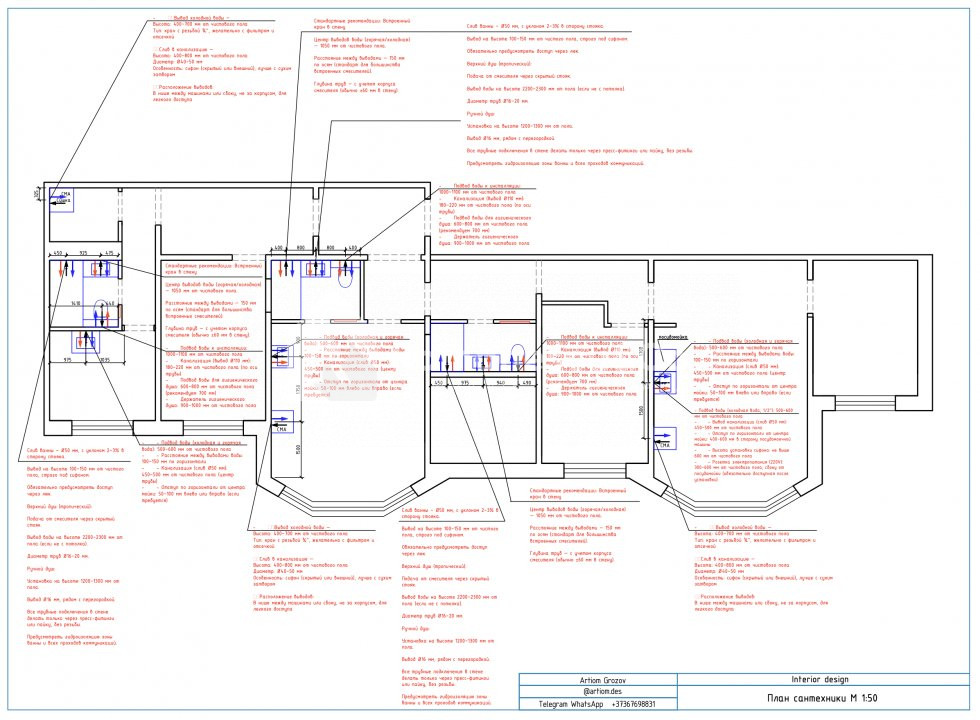
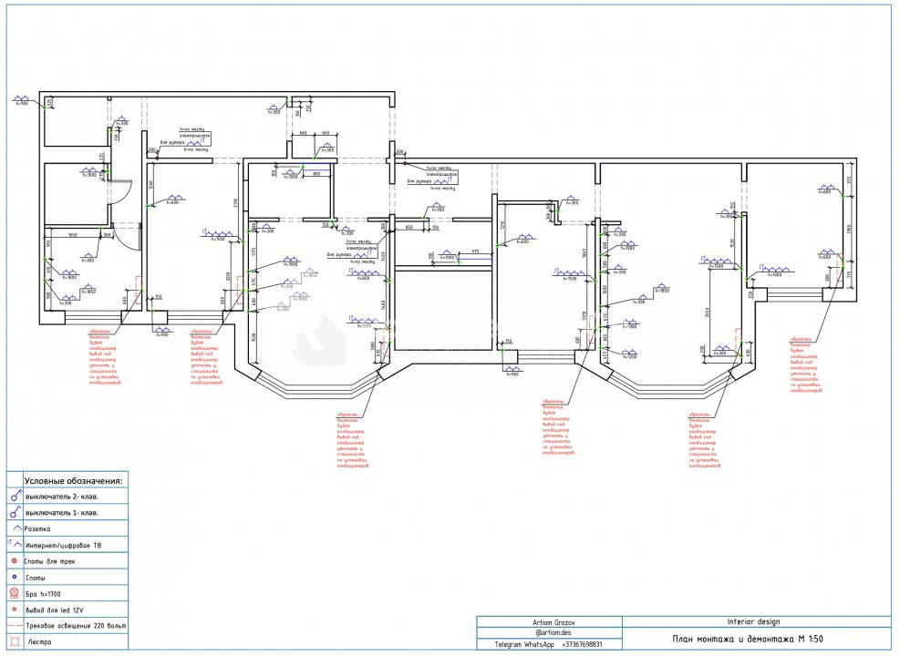
În prezent, prin imobil trec instalații inginerești, care vor putea fi mutate după finisarea sezonului rece, oferind flexibilitate pentru viitorul proiect.
Acest spațiu este ideal pentru diverse activități comerciale, birouri sau servicii, beneficiind de acces facil și vizibilitate ridicată.
Prețul:
* Datele financiare sunt aproximative și pot varia în funcție de instituția financiară.