Romanescu utilizează fişiere de tip cookie pentru a personaliza și îmbunătăți experiența ta pe Website-ul nostru. Înainte de a continua navigarea pe Website-ul nostru te rugăm să aloci timpul necesar pentru a citi și înțelege conținutul Politicii de Cookie. Prin continuarea navigării pe Website-ul nostru confirmi acceptarea utilizării fişierelor de tip cookie conform Politicii de Cookie.

Apartament cu 1 camera+living, bd. Renașterii Naționale, Râșcani, City Gardens.

Chisinau, Riscani, Renasterii Nationale

87.156€
ID: P19073 11
  • Nr. camere:2
  • S. construita:51.47 mp
  • Etaj:Etaj 4
  • Nr. bucatarii:1
  • Nr. bai:1
  • An constructie:2025
  • Structura:Beton
  • Regim inaltime:P+15

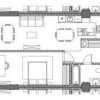
Se vinde apartament cu 1 cameră și living în bloc în construcție, situat în noul complex locativ City Gardens, sector Râșcani, bd. Renașterii Naționale.

Suprafață totală: 53,47 m²
Compartimentare:
Antreu;
Bucătărie cu living;
1 dormitor;
Bloc sanitar.

Caracteristici:
Planimetrie foarte reușită;
Varianta albă;
Carcasă din monolit;
Izolare termică cu vată minerală;
Sistem individual de încălzire cu centrală termică proprie;
Contorizare separată la apă și electricitate;
Geamuri termopan;
Ușă blindată;
Teren de joacă pentru copii.

Infrastructură:
Acces facil la transportul public în orice direcție a orașului.

  • Utilitati generale: Curent, Apa, Canalizare, Gaz
  • Sistem incalzire: Centrala imobil

Achită în rate

Prețul:

87156
Prima rată:
30%
Perioada de calcul:
25 Ani
Plata lunară: 0
Aportul inițial: 0
Suma împrumutată: 0

* Datele financiare sunt aproximative și pot varia în funcție de instituția financiară.

Rusnac Alexandru
Rusnac Alexandru
Senior Partner

Contacteaza-ma

Proprietati similare

Apeleaza Chat